di loretoARCHITECTURE

 

status

Completed

 

client

Pacific University

 

location

Hillsboro and Forest Grove, Oregon

 

budget

Confidential

 

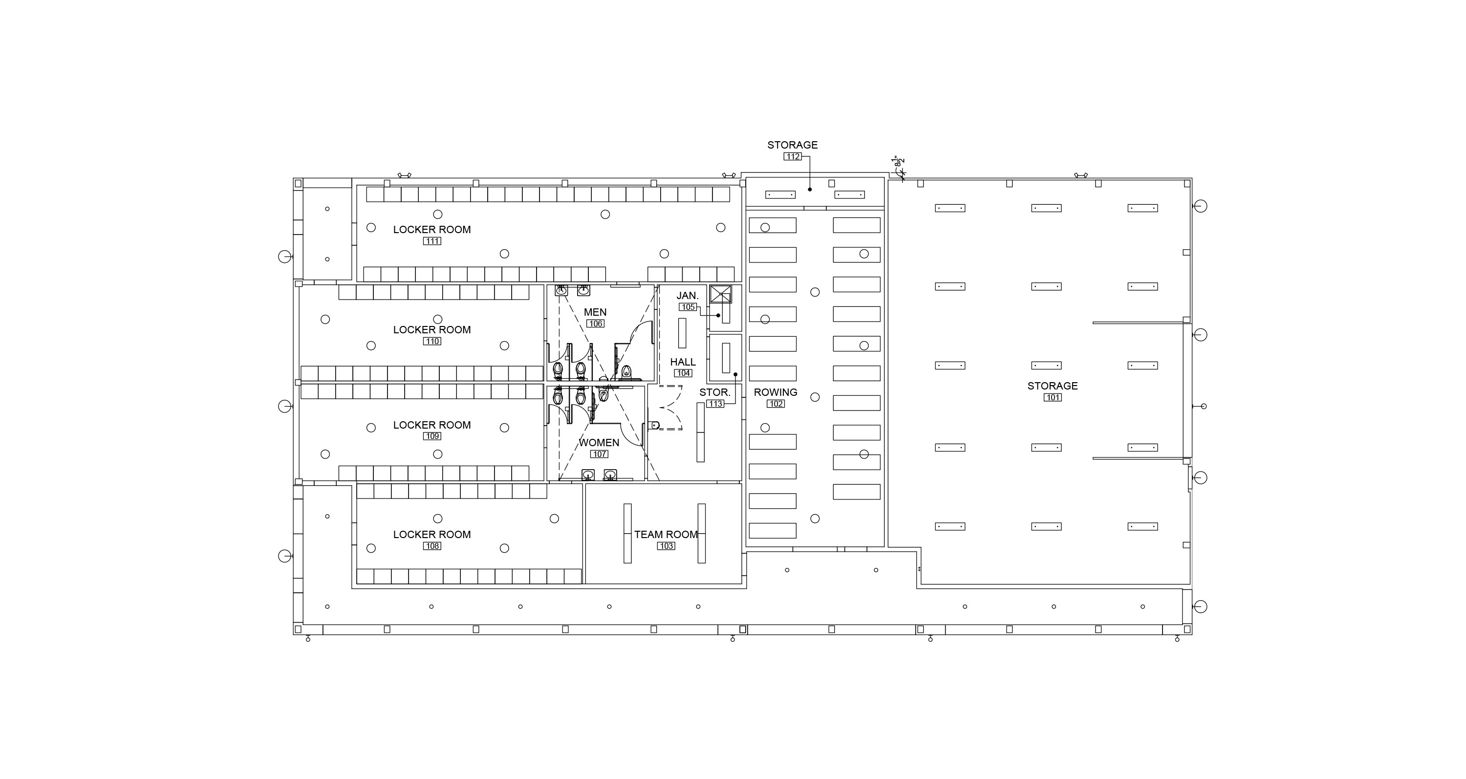
size

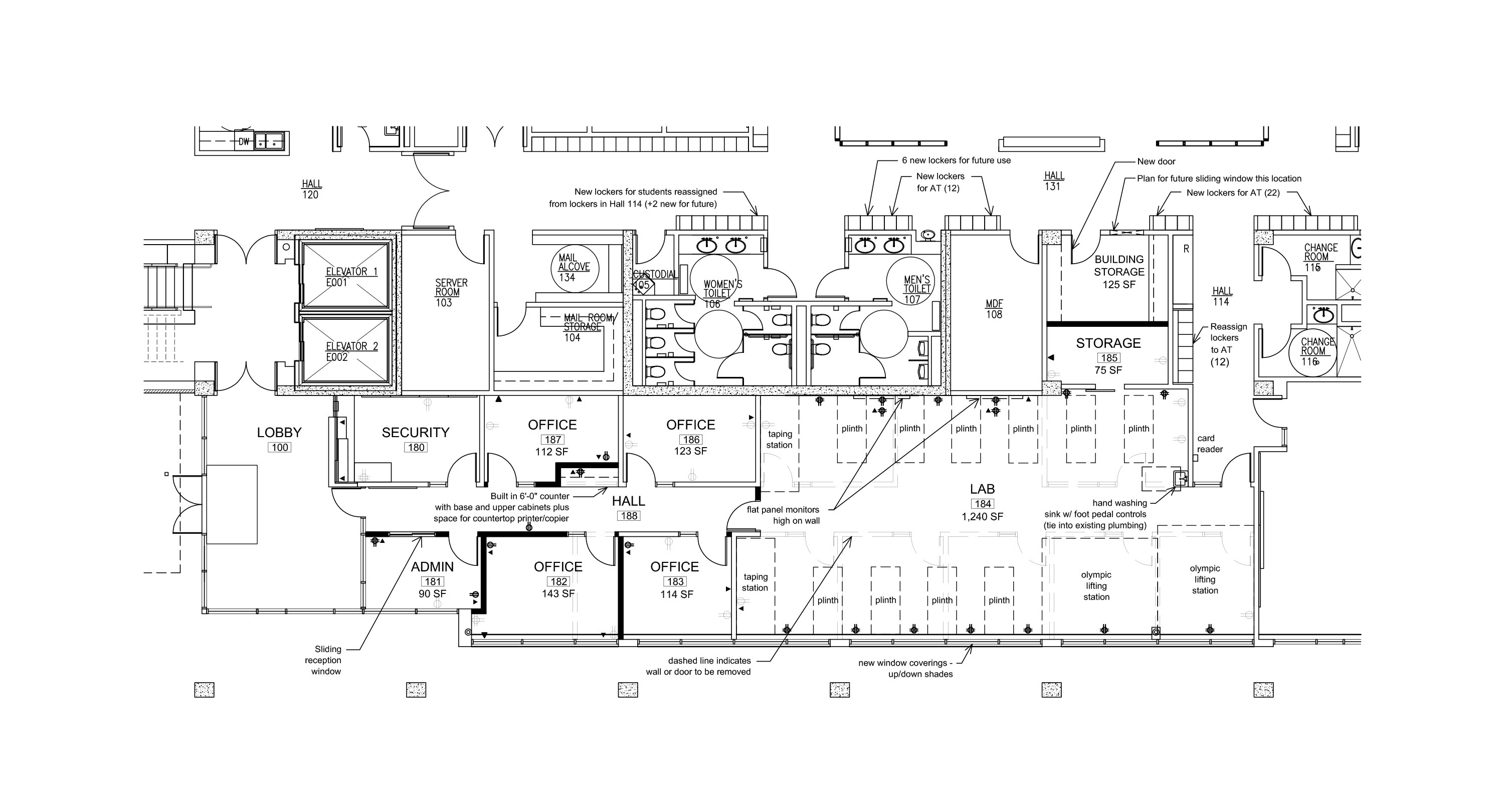
5,225 SF (Training Facilities)

2,700 SF (Athletic Training Dept)

 

team

Chris DiLoreto

Tracy Orvis

Chris LoNigro

 

 

structural

 

mechanical | electrical

 

 

imagery

Pete Eckert